Historical Buildings
INVENTORY
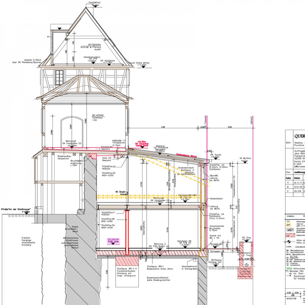
Inventory of the building fabric of the monument:
- Mapping of half-timbering, natural stone, metal components
- Measurement of the building and representation in sections, ground plans, views
- Determining heights and thickness of buildings
- Representation in detail freehand or by using construction techniques
- Making a photographic documentation
- CM moisture measurement and salt content determination








